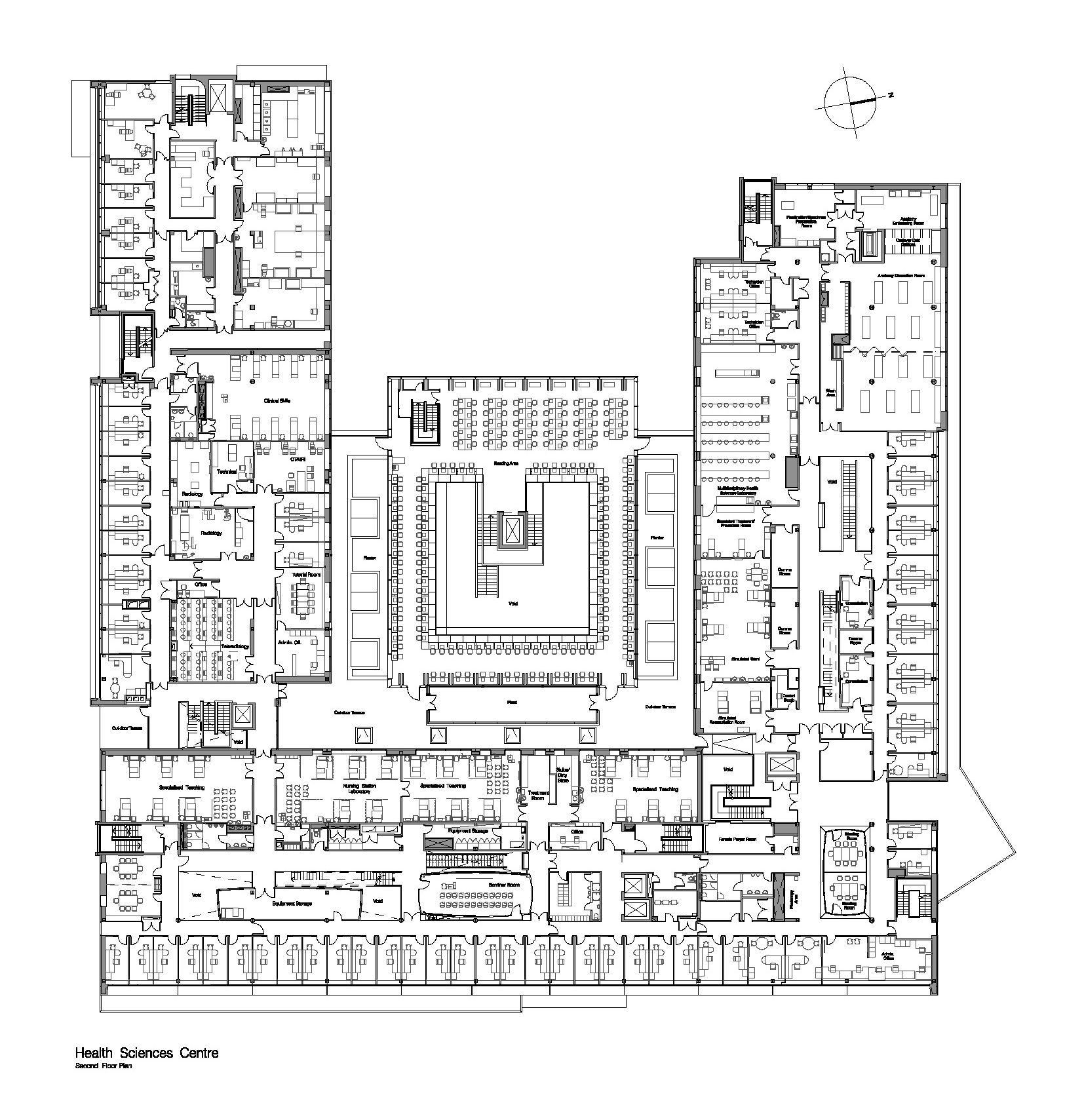
Health SCIENCES CENTRE, UNIVERSITY COLLEGE DUBLIN
Completion: 2007
Architect: Murray Ó Laoire Architects
Ciarán worked on this project while an Associate Director of Murray Ó Laoire Architects
Photography: Marie-Louise Halpenny
The UCD Health Sciences Centre completed in 2007 was a complex, multi-phased project to deliver new facilities for the constituent schools of the UCD Faculty of Medicine.
The first phase of the project comprised the School of Nursing & Midwifery, School of Diagnostic Imaging and School of Physiotherapy. The second phase comprised the School of Medicine and Health Sciences Library, while the third phase delivered the Medical Bureau of Road Safety.
An overlapping design process allowed the three phases to be constructed as one continuous construction project while ensuring each could be occupied even as others were under construction.
2008 Opus Architecture & Construction Excellence Award Winner















