WINDY ARBOUR, DUBLIN 14
Completion: 2023
Contractor: Brookmont Construction
Structural Engineer: Cunningham Consulting Civil & Structural Engineers Ltd
Photography: Ciarán Ferrie
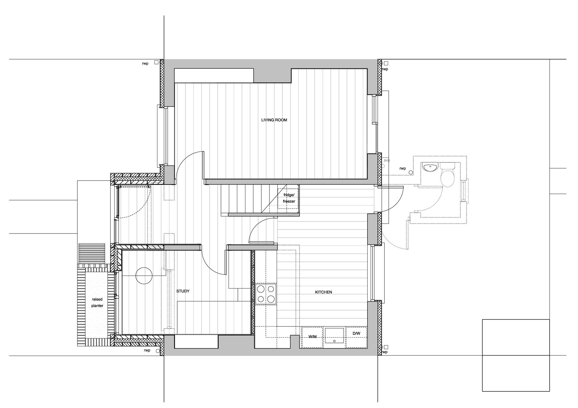
This mid-twentieth century concrete-built house was upgraded to provide improved energy efficiency with external wall insulation and new triple-glazed windows throughout.
A new extension to the front creates space for a home office and a more generous front hallway for a young family, while providing a closer connection to the street in this quiet residential neighbourhood.









